Skip to content
Whole Moon Project

Moon Villas

Contemporary tropical and urban quality living. Two-bedroom villas with ensuite bathrooms, built-in kitchens, and high returns potential in Bali's premier location.

Pecatu, South Kuta Delivering Q1 2026 30-year leasehold · 2 available

The Space

Discover unparalleled investment opportunities in Bali's premier property market with Whole Moon Moon Villas. Contemporary tropical and urban quality living designed for high returns and cultural richness.

Located in Pecatu, South Kuta, these villas feature ensuite bathrooms, built-in kitchens, large windows, and uncommon interiors with quality MEP standards. The project boasts experienced builders and architects with a hospitality license for rental operations.

Design Urban tropical · Large windows
Bedrooms 2 ensuite bedrooms
Bathrooms 2 ensuite bathrooms
Area 150 m²
Kitchen Built-in with appliances
Finishes European sanitary ware

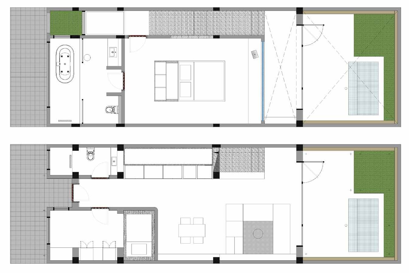
Top View Plan

Preview the architect's aerial rendering of Moon Villas to understand the spatial planning, pool orientation, and landscape integration within the Whole Moon development.

Moon Villas architectural top view showing full layout plan.

Why investors choose Moon Villas

High Returns Potential

Yearly occupancy rate of 70-90% in Bali's global top 5 tourist destination with passive rental income in USD/EUR.

Quality & Location

Prime Pecatu location with experienced builders and architects, pink zone legal permit, and hospitality license for operations.

Turnkey Investment

Fully furnished with fitted wardrobes, beds, kitchen appliances, air-conditioning, and 12-month warranty. Delivering Q1 2026.

Contemporary tropical living in Bali's premier market

Moon Villas is part of the Whole Moon development in Pecatu, offering high quality lifestyle at low cost with cultural richness and diversity. The project features a 30-year leasehold, experienced builders and architects, and hospitality license for rental operations.

Located in a prime area with 25 scooter parking spaces and high-rise building views, investors benefit from low inflation and political risks, favorable regulations, and significant future valuation potential. Accessible long-term visas and health-focused community make this a diverse portfolio asset.

What's included in your villa

Built-in Features

  • Fitted wardrobes in bedrooms
  • Built-in furniture throughout
  • Built-in kitchens with appliances
  • Beds included (no mattress)

Quality Systems

  • Concealed air-conditioning
  • Ventilation systems
  • Quality MEP standards
  • European sanitary ware

Design Elements

  • Large windows for natural light
  • Uncommon interiors
  • Urban tropical design
  • Weaved plantation surroundings

Prime Pecatu location in South Kuta

The Whole Moon building boasts a prime location in Bingin with a thirty-year leasehold contract, ensuring long-term stability. Nestled amidst lush tropical greenery and situated off a paved main street, the property is surrounded by new developments revitalizing the area.

Site context map highlighting the Moon Villas location in Pecatu.
Site Context Map
Aerial drone view of the Moon Villas surroundings in Bingin.
Aerial Surroundings

Nearby Attractions

  • Bingin Beach · Dreamland Beach
  • Uluwatu Beach · Padang Padang Beach
  • Balangan Beach · Thomas Beach
  • World class surf locations

Dining & Wellness

  • Alchemy Uluwatu · Whole Noon
  • Uluwatu Restaurants · The Istana
  • Bambu Fitness Bali · Bali Training Center
  • Spring Spa Uluwatu · Santai Spa

Recreation & Shopping

  • New Kuta Golf Bali
  • The Ground Padel Court · Island Padel Uluwatu
  • Pecatu Shooting Club Bali
  • Fresh Market · Artisan Ungasan

Secure your investment in Moon Villas

Discuss pricing, investment details, and ownership options with our Bali-based team, or schedule a site visit to see the villas in person. Only 2 units available.